BUENA ONDA MUSICA
Diseño, ejecución y gestión integral de la licencia de actividad de la Escuela de Música Buena Onda, en Barcelona – BUENA ONDA MUSICA
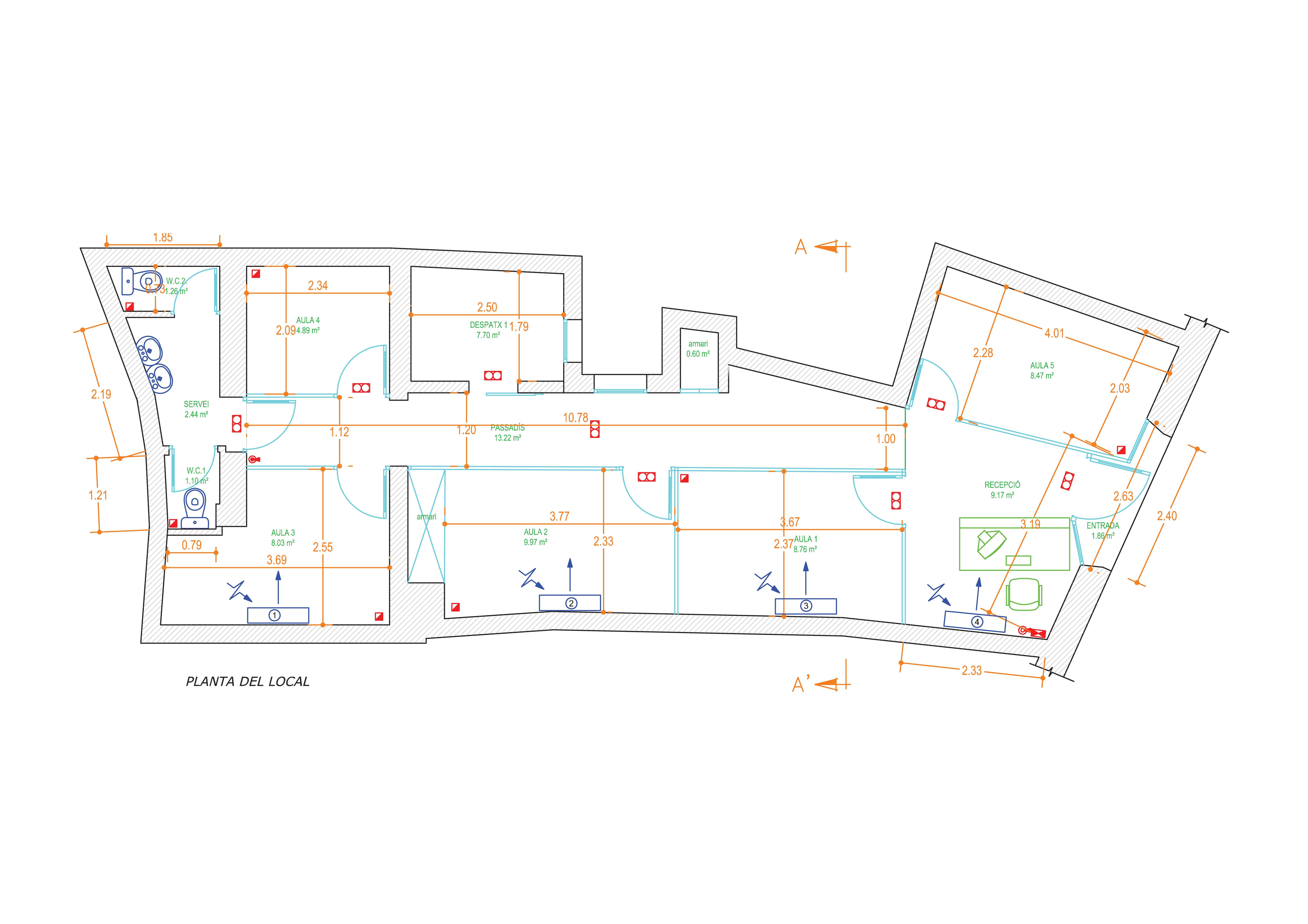
dBplus consultores acústicos ha realizado la gestión integral de la licencia de actividad y del proyecto de impacto acústico incluido en la misma para la Escuela de Música BUENA ONDA, en Barcelona. Con la finalidad de optimizar la inversión económica necesaria para iniciar la actividad, se visitaron varios locales con el cliente y se escogió el más idóneo para la escuela. Se realizó la gestión integral de la licencia de actividad y se diseñaron las soluciones de aislamiento y acondicionamiento acústico teniendo en cuenta las necesidades de los proyectos de seguridad e incendios, climatización y baja tensión. Tras ejecutar las soluciones diseñadas y pasar la inspección administrativa, la escuela funciona de forma adecuada sin generar molestias a los vecinos y con una buena calidad acústica en las aulas de clase.
«Nos ayudaron a buscar el local más idóneo para comenzar nuestro negocio, además hicieron todos los proyectos para obtener la licencia y gestionaron todas las instalaciones, no nos tuvimos que preocupar de nada. Una empresa muy recomendable»
Clio Byrne Gerente Escuela Buena Onda
- CATEGORY Actividades

Español
Català
English